
APARTMENT RS
Тип: жилой интерьер
Стадия: проект, ожидание застройщика
Локация: Алматы, Казахстан
Площадь: 71,1 кв.м
Год: 2024
ОСНОВНАЯ ЗАДАЧА
Квартира сдается от застройщика в чистовой отделке и с кухней. Варианта отказаться — нет. Поэтому нашей задачей было создать грамотный микс чистовых материалов от застройщика с пожеланиями заказчицы увести интерьер в эклектику. Также здесь стоял жесткий запрет на снос межкомнатных перегородок, поэтому необходимо было работать с тем, что есть. + спроектировать террасу в 15 кв. м.
ПЛАНИРОВОЧНОЕ РЕШЕНИЕ
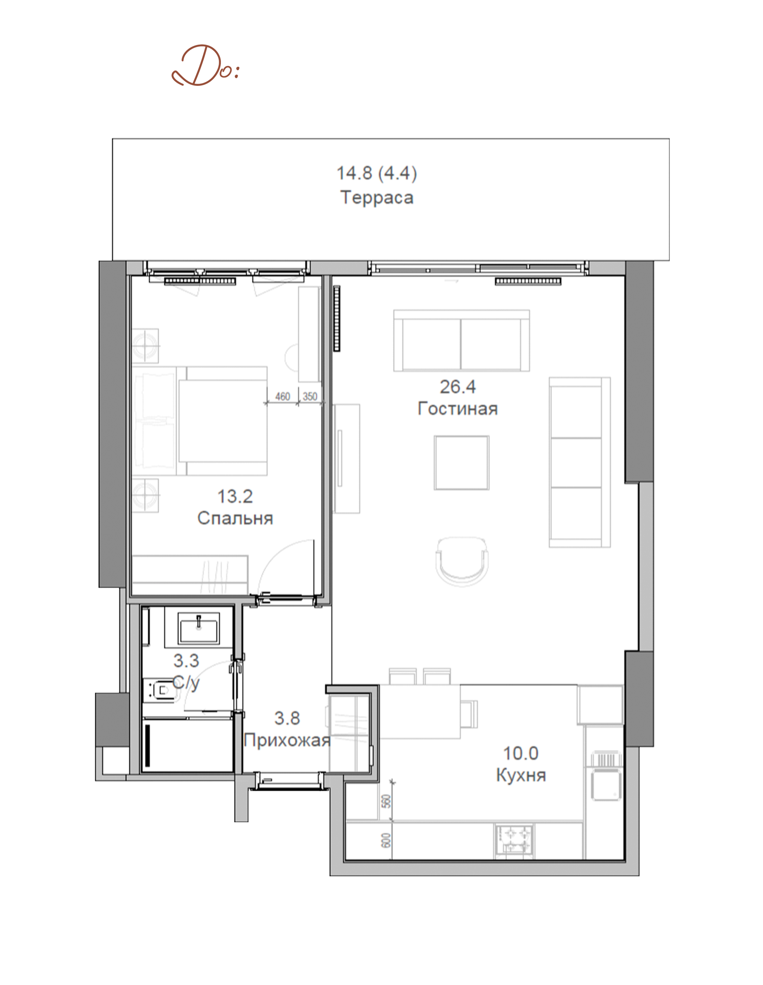
Планировка от застройщика нам не подходила, так как нужно было сделать две спальни, вместо одной. Также кухня, которая шла от застройщика была несоразмерно большая для площади квартиры и для ритма жизни заказчицы, поэтому мы ее уменьшили, оставив комфортное эргономичное пространство для готовки.
Мы добавили отдельную кофе-станцию, где можно комфортно приготовить утренний напиток и завтрак. Благодаря добавлению этого архитектурного объема, получилось добавить отдельную постирочную, где можно будет стирать и сушить вещи, а также хранить хоз. инвентарь. Это необходимое помещение даже для самых маленьких квартир, чтобы грамотно организовать быт и не портить его огромными сушилками по среди квартиры.
Далее кухня — гостиная — спальня поделены между собой свето-пропускающими перегородками: между кухней и гостиной — это перегородка гармошка, которую можно полностью сложить и объединить пространство. Между спальней и гостиной это более приватная перегородка из коричневого металла с матовым стеклом. Благодаря этому решению естественный свет проходит из окна спальни до кухни.
На террасе мы поставили био-камин и кресла для уютных вечеров, для приватности сделали ограждения из зеленых насаждений, которые можно будет менять под сезон. Смотрите планировки до / после ниже:





